Θεσσαλονίκη- ΟΛΘ: Ένα ρυμοτομικό παζλ και 52 διατηρητέα κτίσματα!
Οι όροι που θέτει ο Δήμος Θεσσαλονίκης για την τροποποίηση του ρυμοτομικού της χερσαίας ζώνης του ΟΛΘ - Η πρόταση της Εταιρείας
Έως το τέλος του χρόνου αναμένεται και η σχετική έγκριση από το Συμβούλιο της Επικρατείας
- Newsroom
Το υπόλοιπο των υποχρεωτικών επενδύσεων για το λιμάνι της Θεσσαλονίκης αναμένεται να "κλειδώσει" με την έγκριση του σχεδίου προεδρικού διατάγματος που αφορά το master plan του λιμένα από το Συμβούλιο της Επικρατείας.
Το εν λόγω σχέδιο για το master plan του λιμανιού της συμπρωτεύουσας που περιλαμβάνει τη χωροταξική και περιβαλλοντική τακτοποίηση του, έχει ήδη υπογραφεί από την πλειονότητα των συναρμόδιων υπουργών και έως το τέλος του χρόνου αναμένεται να έχει λάβει και την σχετική έγκριση από το Συμβούλιο της Επικρατείας.
Ο προϋπολογισμός των υποχρεωτικών επενδύσεων προς εκτέλεση ανέρχεται στο ποσό των 160 εκατ.ευρώ.
Σε αυτές περιλαμβάνεται η επέκταση της λιμενικής υποδομής στον 6 προβλήτα ποσού 130 εκατ.ευρώ, ο μηχανικός εξοπλισμός του 6ου προβλήτα 7 εκατ. ευρώ και η αποκατάσταση του Παλαιού Τελωνειακού Σταθμού 23 εκατ. ευρώ.
Η επέκταση της 6ης προβλήτας αποτελεί ένα από τα σημαντικότερα και πολυαναμενόμενα έργα του λιμανιού, επιτρέποντας στο λιμάνι να υποδέχεται πλοία κύριων γραμμών εμπορευματοκιβωτίων έως 24.000 TEU.
Ως προς το συγκεκριμένο έργο υπάρχει δέσμευση από το ελληνικό Δημόσιο, κατά την υπογραφή της σύμβασης, που προβλέπει τη διασύνδεση του λιμένα με το σιδηροδρομικό δίκτυο αλλά και την ΠΑΘΕ και την Εγνατία Οδό, ένα δύσκολο τεχνικά έργο, που έχει ολοκληρωθεί κατά 25%, αλλά μπλοκαριστεί, λόγω προβλημάτων απαλλοτρίωσης.
Σημειώνεται ότι προσωρινός ανάδοχος του έργου «6ος Προβλήτας, Επέκταση Λιμενικής Υποδομής» έχει αναδειχθεί, ύστερα από απόφαση του διοικητικού συμβουλίου της ΟΛΘ Α.Ε., στο σχήμα «ΚΟΙΝΟΠΡΑΞΙΑ ΜΕΤΚΑ - ΤΕΚΑΛ Α.Ε.». Η χρηματοδότηση του έργου αναμένεται να γίνει από ιδία κεφάλαια της ΟΛΘ Α.Ε. αλλά και τραπεζικό δανεισμό.
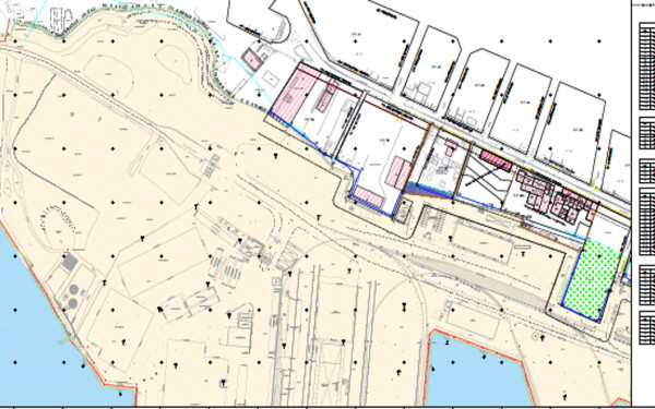
Το προεδρικό διάταγμα του σχεδίου προβλέπει εξάλλου τα επιτρεπόμενα όρια της ζώνης του λιμένα των χρήσεων γης, των όρων και περιορισμών δόμησης στη χερσαία ζώνη, των επιτρεπόμενων προσχώσεων και των προγραμματιζόμενων έργων που εξυπηρετούν την επιβατική εμπορική τουριστική και βιομηχανική κίνηση αλλά και κάθε αναγκαίο στοιχείο για τη λειτουργικότητα του λιμένα.
Σύμφωνα με το άρθρο 4 του σχεδίου του προεδρικού διατάγματος καθορίζεται επίσης η ζώνη πλάτους 8 μέτρων εντός των ορίων της χερσαίας ζώνης του Λιμένα της Θεσσαλονίκης, στα σημεία όπου αυτή εφάπτεται με το ρυμοτομικό σχέδιο του Δήμου (bufferzone).
Στη ζώνη αυτή απαγορεύεται η δόμηση, ενώ επιτρέπεται η διατήρηση των υφιστάμενων κτισμάτων και εγκαταστάσεων, η κατασκευή φυλακίων και κτιρίων ελέγχου και επιτήρησης της ελεύθερης ζώνης και της λιμενικής εγκατάστασης ISPS.
Επίσης, με το άρθρο 5 τροποποιείται το εγκεκριμένο ρυμοτομικό σχέδιο Θεσσαλονίκης στο όριο με τη χερσαία ζώνη του λιμένα, ώστε να αρθεί η σχετική αλληλοεπικάλυψη ορίων και να τακτοποιηθεί μια εκκρεμότητα από το 1920.
Στο ίδιο άρθρο διευκρινίζεται, επίσης, ότι ο Οργανισμός Λιμένα Θεσσαλονίκης Α.Ε. αναλαμβάνει, ως φορέας διοίκησης και εκμετάλλευσης του λιμένα, τις οικονομικές υποχρεώσεις του δήμου που προκύπτουν ένεκα ρυμοτομίας από την πολεοδομική τακτοποίηση της περιοχής.
Να σημειωθεί ότι το Master plan του λιμένα έχει λάβει ήδη τη θετική γνωμοδότηση της Επιτροπής Σχεδιασμού και Ανάπτυξης Λιμένων του υπουργείου Ναυτιλίας, την έγκριση Στρατηγικής Μελέτης Περιβαλλοντικών Επιπτώσεων από την αρμόδια Διεύθυνση του υπουργείου Περιβάλλοντος και Ενέργειας αλλά και τη θετική γνωμοδότηση του δήμου Θεσσαλονίκης.
Το επενδυτικό πρόγραμμα της ΟΛΘ με την έγκριση του σχετικού προεδρικού διατάγματος που αφορά το master plan του λιμένα θα εξασφαλίσει νομολογιακά στο εγγύς μέλλον τον επενδυτή, έναντι οποιασδήποτε αίτησης ακύρωσης η δικαστικής προσφυγής.
Θα είναι το δεύτερο λιμάνι της χώρας μετά τον Πειραιά που θα έχει ένα οργανωμένο σχέδιο ανάπτυξης, προς όφελος της τοπικής κοινωνίας αλλά και του επενδυτή.
Οι όροι που θέτει ο Δήμος Θεσσαλονίκης για την τροποποίηση του ρυμοτομικού της χερσαίας ζώνης του ΟΛΘ - Η πρόταση της Εταιρείας
Επίκεντρο των συζητήσεων αποτέλεσε η ελληνογερμανική συνεργασία στους τομείς του διεθνούς εμπορίου, των logistics και του ψηφιακού μετασχηματισμού
Ο βουλευτής Θεσσαλονίκης του ΣΥΡΙΖΑ-ΠΣ αναφέρθηκε στην αρμόδια επιτροπή της Βουλής, στην τροποποίηση της σύμβασης ιδιωτικοποίησης του ΟΛΘ
Οι υπουργοί Οικονομικών της ευρωζώνης εξετάζουν τον αντίκτυπο της Μέσης Ανατολής στις αγορές, τη χρηματοπιστωτική σταθερότητα και τις επενδύσεις στο πλαίσιο της ευρωπαϊκής στρατηγικής