Δήμος Αριστοτέλη: Πώς θα γίνει η παραλιακή αγορά του Στρατωνίου μετά την ανάπλαση - Δείτε φωτογραφίες
Στο πράσινο ταμείο η πρόταση χρηματοδότησης
Οι εργασίες περιλαμβάνουν μεταξύ άλλων πρόβλεψη διαχείρισης των όμβριων υδάτων και ανανέωση του αστικού εξοπλισμού κοινόχρηστων χώρων
- Newsroom
Σε φάση υλοποίησης εισέρχεται μια ακόμα σημαντική ανάπλαση, στον οικισμό της Βαρβάρας και μάλιστα σε 5 σημεία, μετά την υπογραφή της σχετικής σύμβασης με την ανάδοχο εταιρεία, από τον Δήμαρχο Αριστοτέλη Στέλιο Βαλιάνο.
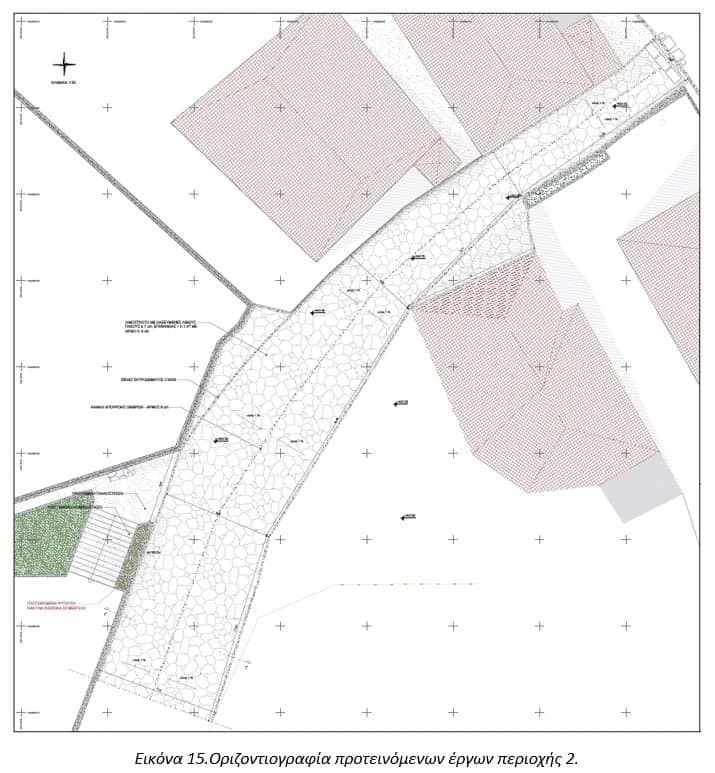
Το έργο χρηματοδοτείται από το Πρόγραμμα Δημοσίων Επενδύσεων και συγκεκριμένα από κωδικό ΣΑΕ του Υπουργείου Εσωτερικών και περιλαμβάνει επεμβάσεις που βελτιώνουν το βιοτικό επίπεδο των κατοίκων και εξασφαλίζουν την προσβασιμότητα στην περιοχή. Οι προτεινόμενες επεμβάσεις θα υλοποιηθούν σε πέντε περιοχές εντός Δ.Κ. Βαρβάρας και συγκεκριμένα αφορούν σε:
α) πλακόστρωση υπαίθριου κλιμακοστασίου (σκάλα "Βαρβαριώτη")
β) λιθόστρωση του πεζόδρομου δίπλα στο παλιό σχολείο (από παιδική χαρά έως οικία Τσιογκα),
γ) λιθόστρωση φυσικού μονοπατιού (ανάμεσα στις οικίες Μαλαμάτη και Αναστασίου),
δ) διαμόρφωση κοινόχρηστου χώρου ("Ζουριό") και
ε) τσιμέντοστρώση δρόμου στην παιδική χαρα. Επιπλέον προβλέπεται πλήρης ανακατασκευή με νέα διαμόρφωση, δαπεδόστρωση και νέα όργανα στην παιδική χαρά.
Οι εργασίες περιλαμβάνουν μεταξύ άλλων πρόβλεψη διαχείρισης των όμβριων υδάτων και ανανέωση του αστικού εξοπλισμού κοινόχρηστων χώρων.
Ο Δήμαρχος Αριστοτέλη Στέλιος Βαλιάνος επισημαίνει:
«Σταδιακά αλλάζει η αισθητική και η λειτουργική ποιότητα της καθημερινότητας σε όλες μας τις κοινότητες. Όλες οι κοινότητες του Δήμου Αριστοτέλη, η μια μετά την άλλη, είδαν, βλέπουν ή θα δουν σύντομα να εξελίσσονται έργα που θα αναβαθμίζουν τους οικισμούς, τόσο για τον κάτοικο, όσο και για τον επισκέπτη. Και οι αναπλάσεις είναι μόνο μια από τις κατηγορίες έργων και παρεμβάσεων, που πιστοποιούν τη φιλοσοφία με την οποία ξεκινήσαμε την πρώτη θητεία και συνεχίζουμε και στη δεύτερη: Ένας Δήμος, 16 Πρωτεύουσες!»
Στο πράσινο ταμείο η πρόταση χρηματοδότησης
Πρόκειται για το συμπόσιο που διοργανώνει ο δήμος Αριστοτέλη
Οι πληροφορίες στο smartwatch του 45χρονου δεν έδωσαν ουσιαστικά στοιχεία για τη διαδρομή που ακολούθησε
Κανονικά διέρχονται όλα τα οχήματα από τον σταθμό διέλευσης στην Εξοχή Δράμας, όπου αγρότες και κτηνοτρόφοι προσανατολίζονται σε εκ νέου αποκλεισμό