Χαλκιδική: Έργα ανάπλασης 200.000 ευρώ ξεκινούν στη Βαρβάρα (φωτ.)

Τι θα περιλαμβάνουν οι εργασίες

- Newsroom


Σε πέντε σημεία της Βαρβάρας θα ξεκινήσουν σύντομα έργα αναπλάσεων που θα αναβαθμίσουν την καθημερινότητα κατοίκων και επισκεπτών, μετά την άμεση δημοπράτηση του έργου.


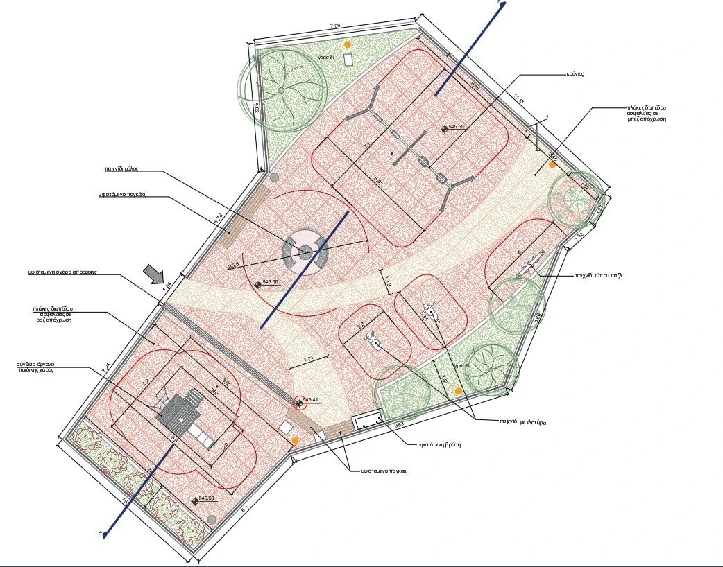
Οι εργασίες ύψους 200.000 ευρώ περιλαμβάνουν πλακόστρωση του υπαίθριου κλιμακοστασίου, λιθόστρωση του πεζόδρομου δίπλα στο παλιό σχολείο, λιθόστρωση δρόμου και ενός φυσικού μονοπατιού, αλλά και νέα διαμόρφωση με δαπεδόστρωση στην παιδική χαρά.

364612203-596435769319652-9217648713115854608-n.jpg
358127090-596435945986301-4509059912690048313-n.jpg
358123195-596436239319605-2256373799483996374-n.jpg
358125189-596436325986263-1992588202258444738-n.jpg
358121364-596436125986283-3435253528828597895-n.jpg
364207548-596435862652976-6663334971597960625-n.jpg
358129692-596436079319621-3737603448467912810-n.jpg
358149020-596435852652977-370755800297196529-n.jpg
358120021-596435892652973-4855634857806989005-n.jpg
364128633-596435935986302-1681607722484902012-n.jpg
358118432-596436175986278-3111469740719750171-n.jpg
364626247-596435985986297-8641519247379773480-n.jpg













Loader
ESPA