Στόχος η καθολική προσβασιμότητα στον τουρισμό
Συνάντηση της υπουργού Τουρισμού Όλγας Κεφαλογιάννη με τον Πανελλήνιο Σύλλογο Παραπληγικών
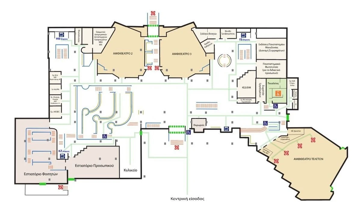
Στο πλαίσιο της φιλοσοφίας «σχεδιασμός για όλους», η εφαρμογή μπορεί να χρησιμοποιηθεί ως βοήθημα εντοπισμού θέσεων και πληροφοριών από κάθε άτομο με ή χωρίς αναπηρία (φοιτητές, προσωπικό και επισκέπτες) που κινείται στους χώρους του Πανεπιστημίου
- Newsroom
Το Πανεπιστήμιο Μακεδονίας, πρωτοπορεί στο πεδίο της προσβασιμότητας και δημοσιεύει στο διαδίκτυο (https://accessguide.uom.gr/), για κάθε πιθανό χρήστη, τον πρώτο Ψηφιακό Οδηγό Προσβασιμότητας του Πανεπιστημίου Μακεδονίας, που αναπτύχθηκε στο πλαίσιο του προγράμματος «Υποστήριξη Παρεμβάσεων Κοινωνικής Μέριμνας Φοιτητών του Πανεπιστημίου Μακεδονίας» (ΕΣΠΑ 2014- 2020), με Επιστημονικά Υπεύθυνο τον καθηγητή Κωνσταντίνο Παπαδόπουλο.
Επιπλέον, στο πλαίσιο της φιλοσοφίας «σχεδιασμός για όλους», η εφαρμογή μπορεί να χρησιμοποιηθεί ως βοήθημα εντοπισμού θέσεων και πληροφοριών από κάθε άτομο με ή χωρίς αναπηρία (φοιτητές, προσωπικό και επισκέπτες) που κινείται στους χώρους του Πανεπιστημίου Μακεδονίας.
Τα χαρακτηριστικά του δομημένου περιβάλλοντος και διάφορα μόνιμα και κινητά εμπόδια, είναι ικανά να μειώσουν σημαντικά την προσβασιμότητα, δημιουργώντας δυσκολίες στην ελεύθερη και ανεμπόδιστη κίνηση ή/και να παράγουν αποκλεισμούς. Τα περισσότερα από αυτά τα χαρακτηριστικά μπορεί να αποτελούν προσπελάσιμα εμπόδια για τα άτομα χωρίς αναπηρία ή γενικότερα για μη εμποδιζόμενα στην κίνηση άτομα, αλλά ίσως αποδειχτούν απροσπέλαστα εμπόδια για τα εμποδιζόμενα στην κίνηση άτομα.
Στην κατηγορία των εμποδιζόμενων στην κίνηση ατόμων συμπεριλαμβάνεται ένας πολύ μεγάλος πληθυσμός πολιτών, όπως τα άτομα με οπτική αναπηρία, τα άτομα με κινητική αναπηρία (άτομα σε αναπηρικό αμαξίδιο ή άτομα που κινούνται με τη χρήση βοηθημάτων στήριξης), τα άτομα τρίτης ηλικίας, οι εγκυμονούσες γυναίκες, τα άτομα με μειωμένη ικανότητα χωρικής αντίληψης, ακόμη και οι γονείς που κινούν βρεφικό καρότσι. Για τις ομάδες αυτές μπορεί να φανεί ιδιαίτερα αποτελεσματική η χρήση κάποιου βοηθήματος προσβασιμότητας.
Ένα τέτοιο βοήθημα είναι ο Οδηγός Προσβασιμότητας του Πανεπιστημίου Μακεδονίας, που στοχεύει να παρέχει βοήθεια σε εμποδιζόμενα στην κίνηση άτομα, με ιδιαίτερη έμφαση στα άτομα με κινητική αναπηρία και ειδικότερα σε αυτά που χρησιμοποιούν αναπηρικό αμαξίδιο. Πέρα από τις υπόλοιπες πληροφορίες, στο βοήθημα απεικονίζονται οι προσβάσιμες διαδρομές, ενώ επιπλέον δίνεται η δυνατότητα στους χρήστες να δηλώσουν (στις υπηρεσίες που πανεπιστημίου) σημεία μειωμένης προσβασιμότητας, προκειμένου να υπάρξει φροντίδα αποκατάστασης της πρόσβασης.
Όπως δήλωσε ο υπεύθυνος του έργου, καθηγητής Κωνσταντίνος Παπαδόπουλος, «Το θέμα της προσβασιμότητας προβάλλει διεθνώς ως ένα φλέγον ζήτημα. Στις σύγχρονες κοινωνίες δεν νοείται πλήρης κοινωνική ενσωμάτωση εάν δεν υπάρχει η δυνατότητα της ανεμπόδιστης μετακίνησης και συμμετοχής σε κάθε βαθμίδα εκπαίδευσης. Η κινητικότητα στο δομημένο πανεπιστημιακό χώρο δεν πρέπει να εκλαμβάνεται απλώς ως μια ευκολία, αλλά ως θεμελιώδες δικαίωμα των ατόμων με αναπηρία».
Για να αποκτήσετε πρόσβαση στον Οδηγό Προσβασιμότητας του Πανεπιστημίου Μακεδονίας επιλέξτε το σύνδεσμο https://accessguide.uom.gr/
Συνάντηση της υπουργού Τουρισμού Όλγας Κεφαλογιάννη με τον Πανελλήνιο Σύλλογο Παραπληγικών
Στα δώδεκα ΑΕΙ που ήδη έχουν ενταχθεί στο Πρόγραμμα, προστέθηκαν το Πανεπιστήμιο Πελοποννήσου και το Ελληνικό Μεσογειακό Πανεπιστήμιο
Το συντονιστικό του μπλόκου της Νίκαιας εισηγήθηκε την διαγραφή των δύο αγροτών που με δική της πρωτοβουλία αποφάσισαν να πάνε στη σύσκεψη με τον Πρωθυπουργό
Μέσω της διεθνούς έρευνας TALIS, οι εκπαιδευτικοί θα μοιραστούν εμπειρίες και πρακτικές, συμβάλλοντας στη διαμόρφωση εκπαιδευτικών πολιτικών βασισμένων σε πραγματικά δεδομένα